Contacto +543516565666
Ideal Para Familia Grande O Empresas
USD 137.000 - EN VENTA
Descripción
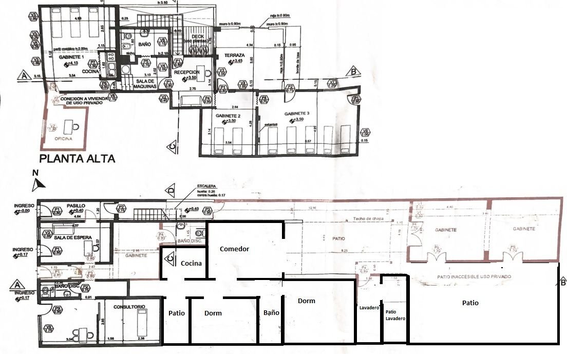
Venta de Casa 4 DORMITORIOS en Paso de los Andes, Córdoba CON MUCHAS HABITACIONES COMO PARA FAMILIA GRANDE O EMPRESA Ubicada en la calle Río Negro 469. En una zona comercial. Ultimamente se utilizó como centro de estética por eso las fotos se ven así. En las fotos hay una que es de un plano bosquejo que sirve a modo orientativo para conocer su distribución. Podés armar un local al frente, vivienda atrás, y vivienda en la planta alta ya que tiene un pasillo lateral que conecta el resto de la casa sin ingresar por la entrada principal. Hasta podrías hacer 2 locales en el frente, 2 viviendas atrás, y una vivienda arriba. Tiene muchas posibilidades. Está desarrollada en 2 plantas: # En la planta baja tenés un local con baño en el frente, anteriormente era el living y garaje de la casa; y atrás tenés la cocina, comedor, baño, dormitorios y patio con quincho. # En el entre piso tenés un entre piso en donde hay un dormitorio # En la planta alta contás con: un escritorio, dormitorio, baño completo con ducha, hall distribuidor, y 2 salones. MÁS INFO? # El terreno tiene 320m² # En catastro figuran 265m² cubiertos # Cuenta con gas natural y luz funcionando. Toda la casa tiene un solo servicio de luz y gas. # Se entrega desocupada # Antiguedad desde el año 1968 según Catastro # Cuenta con Escritura Se la ve en muy buen estado. Solo la tenés que adaptar a tus necesidades de vivienda o comerciales. ----------------------------------------------------------------------------- Querés vender tu propiedad con nosotros? XINTEL(CPS-CPS-943)
| Detalles | |
|---|---|
| Código | KP467711 |
| Categoría | Casas |
| Estado | Activa |
| Ubicación | Río Negro 469 |
| Barrio | Alberdi |
| Localidad | Córdoba, Córdoba |
| Tipo de operación | En venta |
| Ambientes | 6 |
| Dormitorios | 5 |
| Baños | 3 |
| Piso | No definido |
| Mts totales (mt²) | 320.00 |
| Mts cubiertos (mt²) | 265 |
| Tamaño terreno (mt²) | 320 |
| Año de construcción | 1968 |
USD 137.000 - EN VENTA
KP467711Broker asignado