Contacto +543516565666
Venta de Departamento 2 Dormitorios en Güemes / Obervatorio
USD 82.000 - EN VENTA
Descripción
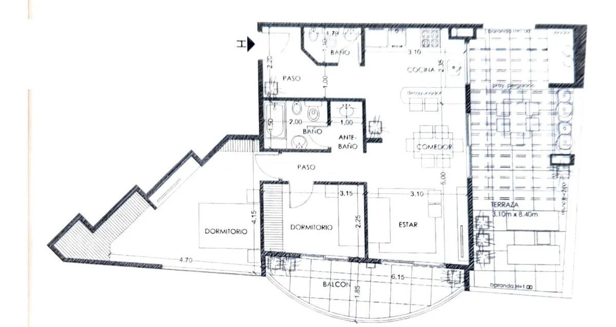
Venta de Departamento 2 Dormitorios en Guemes, Observatorio, Nueva Cordoba, Córdoba SI QUERÉS VIVIR CÓMODO Y TENER UNA GRAN TERRAZA, DETENETE ACÁ. Este departamento está ubicado en Av Pueyrredón 864, en el piso 6, y al frente. Lo destacado de esta edificio es el ingreso jerárquico al edificio y a cada departamento, tenés que verlo para sentirlo. Y lo destacado del departamento es que tiene una terraza de gran tamaño con vista al Este, hacia Nva Cba, que te ruega encuentros sociales con tus amigos, y tiene buena integración con el estar comedor. Yo creo que lo vas a ver y te vas a enamorar. Cuál es la contra? que te vas a tener que aguantar la ganas para ocuparlo porque está alquilado hasta fines de Noviembre del 2026. Pero habría una posibilidad de desocuparlo antes. Será? TE CUENTO CÓMO ESTÁ DISTRIBUIDO, PERO TE SUGIERO VER EL PLANO. TIENE: 2 dormitorios. Uno muy grande con espacio para vestidor, y el otro todo lo contrario pero entra una cama de una plaza.2 baños. Uno con antebaño, sería el baño privado. Y el otro baño de servicio que está conectado con el estar.Cocina integrada al living comedor.Estar comedor con vista al Este y conectado con la terraza, y otro balcón. MÁS INFO? Tiene 66m² cubiertos El balcón terraza tiene 27m²El otro balcón tiene 9m²Cuenta con gas natural La venta se realiza por cesión, por lo tanto no es apto para crédito hipotecario. ----------------------------------------------------------------------------- Querés vender tu propiedad con nosotros?
| Detalles | |
|---|---|
| Código | KP468269 |
| Categoría | Departamentos |
| Estado | Activa |
| Ubicación | Av Pueyrredon 864 |
| Barrio | Guemes |
| Localidad | Córdoba, Córdoba |
| Tipo de operación | En venta |
| Ambientes | 3 |
| Dormitorios | 2 |
| Baños | 2 |
| Piso | 6 |
| Pisos en el edificio | 7 |
| Mts totales (mt²) | 102.00 |
| Mts cubiertos (mt²) | 66 |
| Mts no cubiertos (mt²) | 36 |
| Año de construcción | 2015 |
| Expensas | usd 200000.00 |
USD 82.000 - EN VENTA
KP468269Broker asignado